Bæredygtige rækkehuse i Engdraget

30 januar, 2019

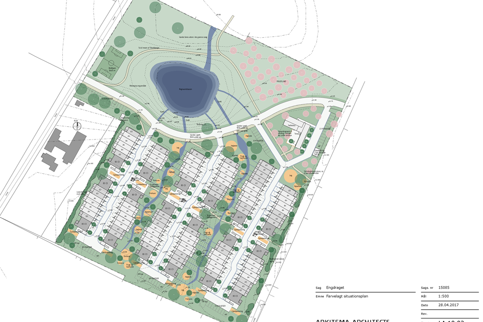
Vi afleverer nu 1. etape af i alt 126 rækkehuse – se Slagelse Boligselskabs film fra boligerne

Slagelse Boligselskab får nu overdraget de første boliger i afdelingen Engdraget, og de spændte beboere kan snart flytte ind i deres bæredygtige boliger i det helt nye kvarter.

Boligerne er i størrelsen 89 – 113 m2, og Engdraget henvender sig til både familier, singler, par og seniorer, som ønsker at engagere sig i afdelingens sociale og bæredygtige udvikling.

Slagelse Boligselskab har med Engdraget tænkt i nye rammer i forhold til den almene bolig, og vi er stolte over at være totalentreprenør på projektet.

Der har været en fotograf forbi byggepladsen, og du kan her se Slagelse Boligselskabs film af de næsten-færdige boliger – de er blevet ret flotte, hvis vi selv skal sige det:

 

 Du kan læse mere om Engdraget her og hos Slagelse Boligselskab.

Hvis du vil vide mere om projektet eller vores andre svanemærkede modulbyggerier, er du velkommen til at kontakte os på +45 9867 2500.